佛山市沥东铝型材制品有限公司

  佛山市沥东铝型材制品有限公司,是一家专业生产铝合金建筑型材和工业型材的企业,位于素有“广佛走廊”和“中国铝材第一镇”之称的大沥镇,东距广州,南接佛山禅城区,是321和325国道的交汇点,地理位置得天独厚.本公司于1991年建厂投产,厂房面积达25000多平方米,职工达500人,并拥有一支高文化、高素质管理人才队伍.技术力量雄厚,工种结构搭配合理,具有很强的开拓进取意识,能为广大用户提供优良的多种产品和服务.公司主要生产阳极氧化着色型材、电泳涂漆型材、粉末喷涂型材、氟碳漆型材和仿木纹、隔热型材,产品规格齐全,主要有90、96、2001、2010、868、858、828、88、80、78、76、73、70、768、65、50、40、38、46和不二系列等多种系列的铝合金建筑型材和工业材。

    本公司拥有年生产2万吨以上的铝型材先进设备,包括熔铸生产线4条,进口挤压机组10台,以及进口的氧化着色生产线、电泳涂漆生产线和粉末喷涂生产线,为本公司高效率、高质量的生产奠定了坚实的基础,凭着现代化的科学管理和雄厚的技术力量,使本公司产品具有色泽均匀,色差小,强度高,并耐酸、耐碱、耐磨等优点,产品的化学成分、力学性能、表面处理等各项指标均符合国家相关标准。

    为适应我国加入WTO和全球经济一体化发展的需要,迎接不断壮大和竞争激烈的铝型材市场的挑战,本公司不断引进先进的设备和技术,开发新品种和科学管理,通过了ISO9001质量体系认证和中国方圆标志产品质量认证,并学习国外和国内同行业的先进技术和经验,不断完善生产工艺,对产品的生产实行严格的工艺监控和质量检查,使产品的生产过程随时处于受控状态。产品严格按照国家标准进行控制,确保不合格产品不转序不出厂,尽力提高顾客的满意程度,并始终坚持“质量第一,顾客至上”的服务宗旨。凭着科学的管理和先进的设备和技术,再加上“沥东人”不懈的努力,本公司的产品质量和经济效益达到了新高,先后于1999年获得进入广州建材市场“使用认证证书”,2001年获得河北省市场监督抽查检验“合格证书”,历年获得佛山市产品质量监督抽查合格产品“荣誉证书”,2003年获得杭州市质量监测中心“质量跟踪产品”荣誉证书,2003年获得“全国质量信得过产品”、 “全国质量消费满意产品”、 “国家权威检测达标——国家质量检测合格建材产品”、 “中国环保优质建材”和“中国市场知名品牌产品”以及“河北省建设工程材料准用证”等荣誉称号,并连续在国家级、省级质量技术监督局的监督抽查中均合格。但我们并不沉浸于眼前的利益和荣誉之中,应不断学习和创新,赶超国内外先进企业,使本企再上一个新台阶。

    本公司产品行销全国各地及国外,深受广大用户好评和信赖,产品由中国人民保险公司承保。在此,我诚恳欢迎广大客户来人,来电,来图订货或来模加工订造,欢迎参观指导,恭候光临惠顾!


   
868系列
90D系列
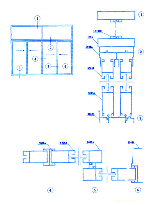
858系列
40门系列
90系列
 

 

地址:佛山市南海区大沥镇广佛公路桂江路口
邮编:
电话:86-0757-85553750 85537368
传真:86-0757-85560368
网址:http://lidong-alu.com
E-mail: [email protected]
 
Copyright © 2002-2005 e3356.com All rights reserved